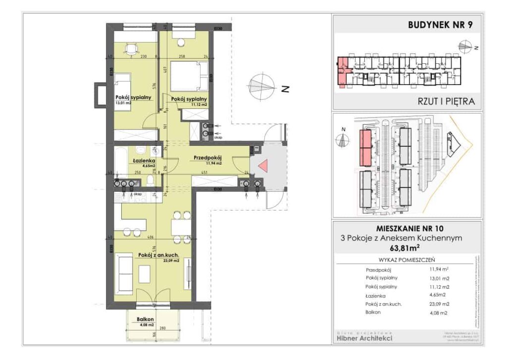
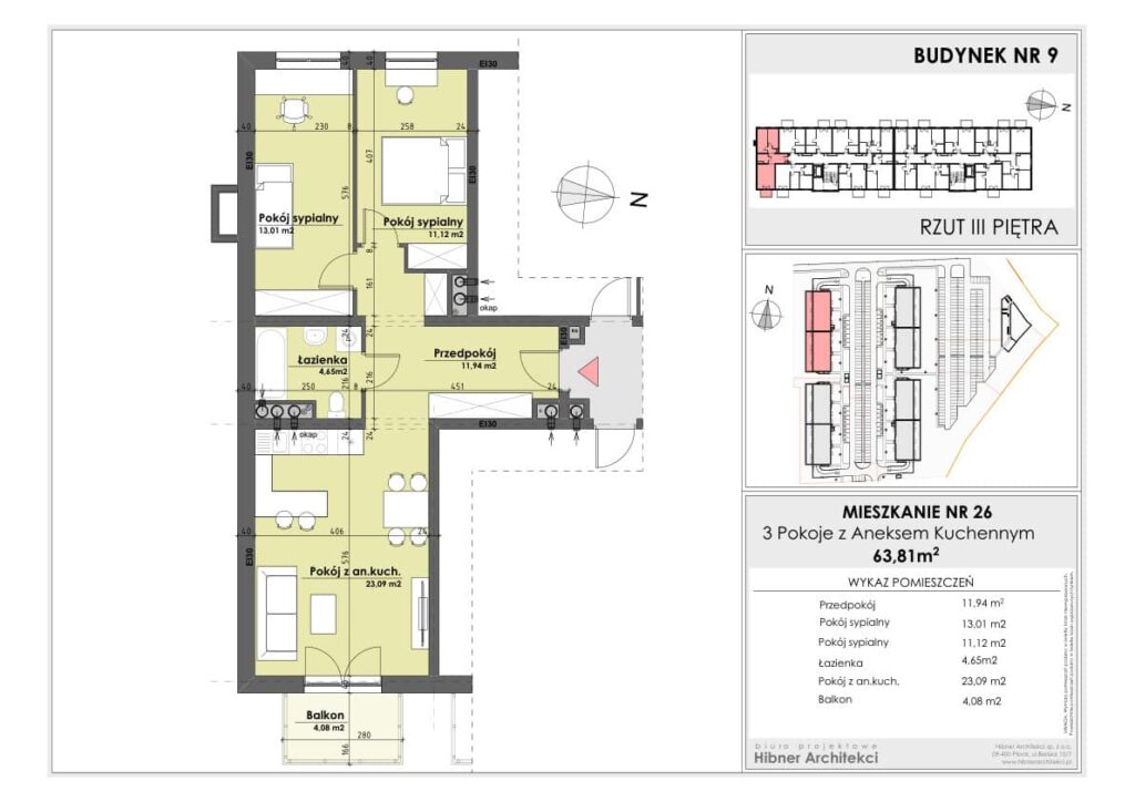
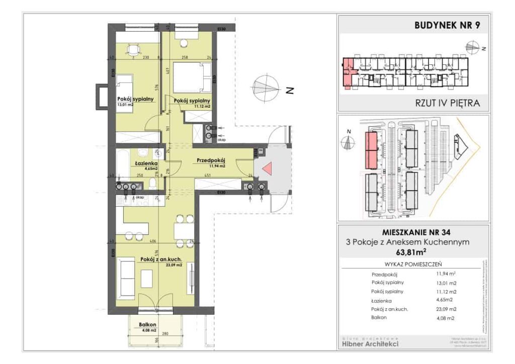
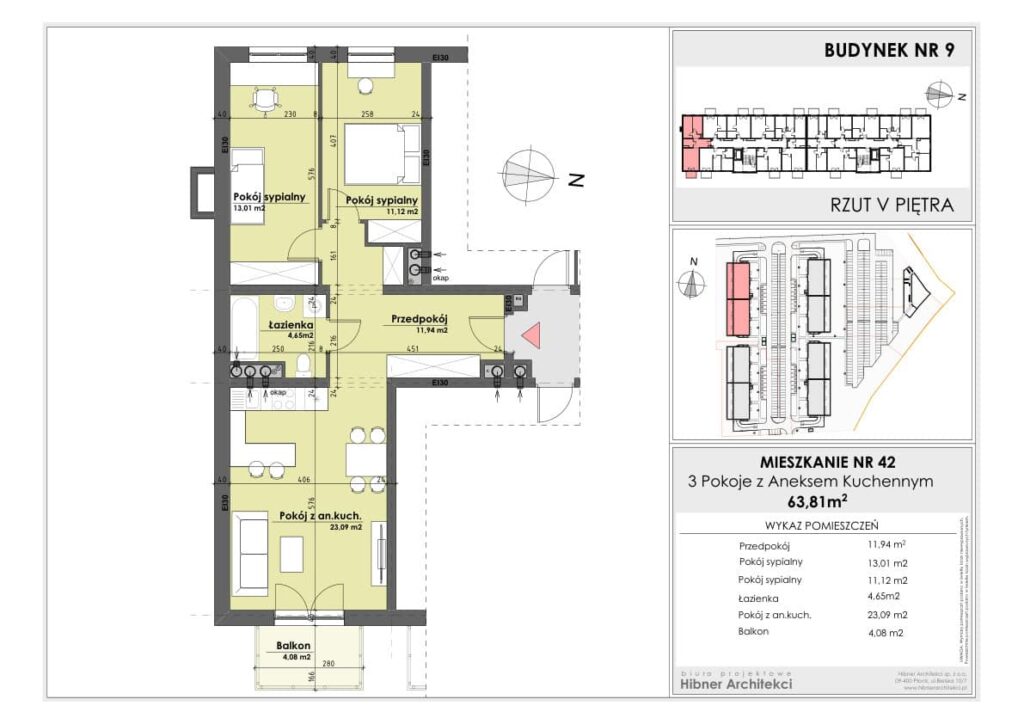
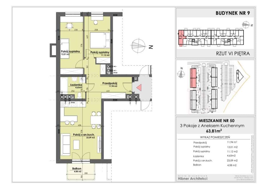
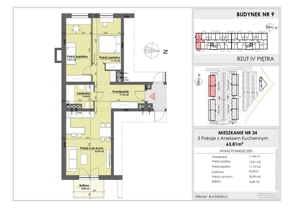
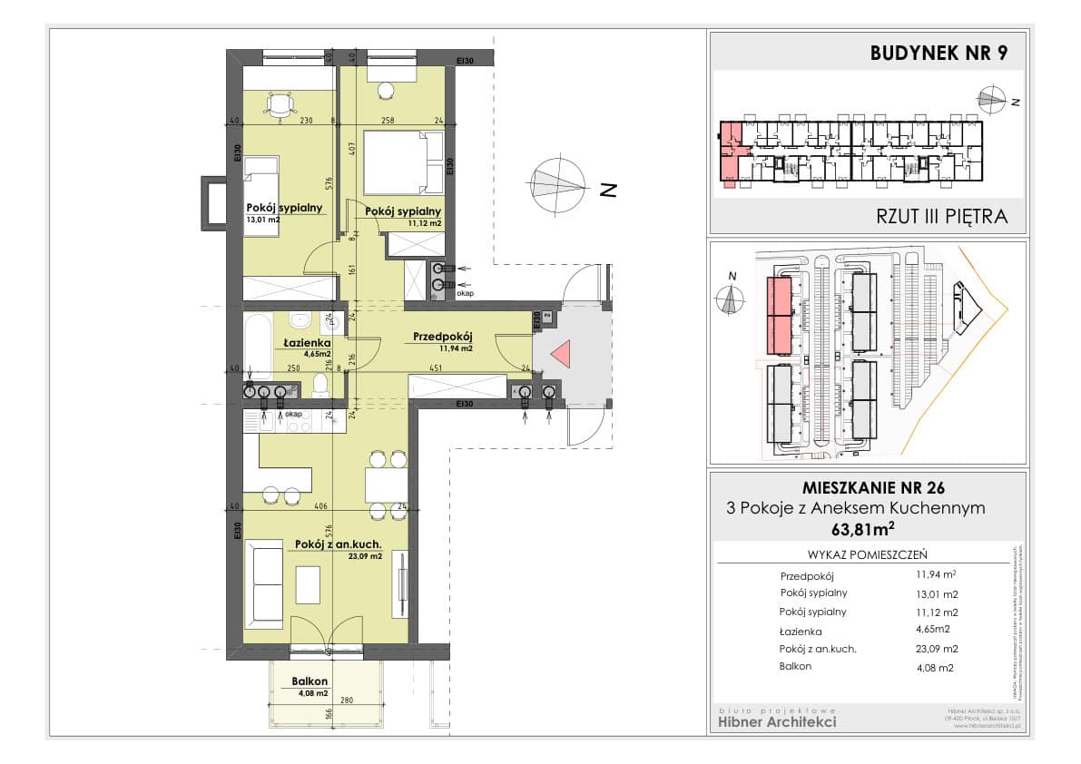
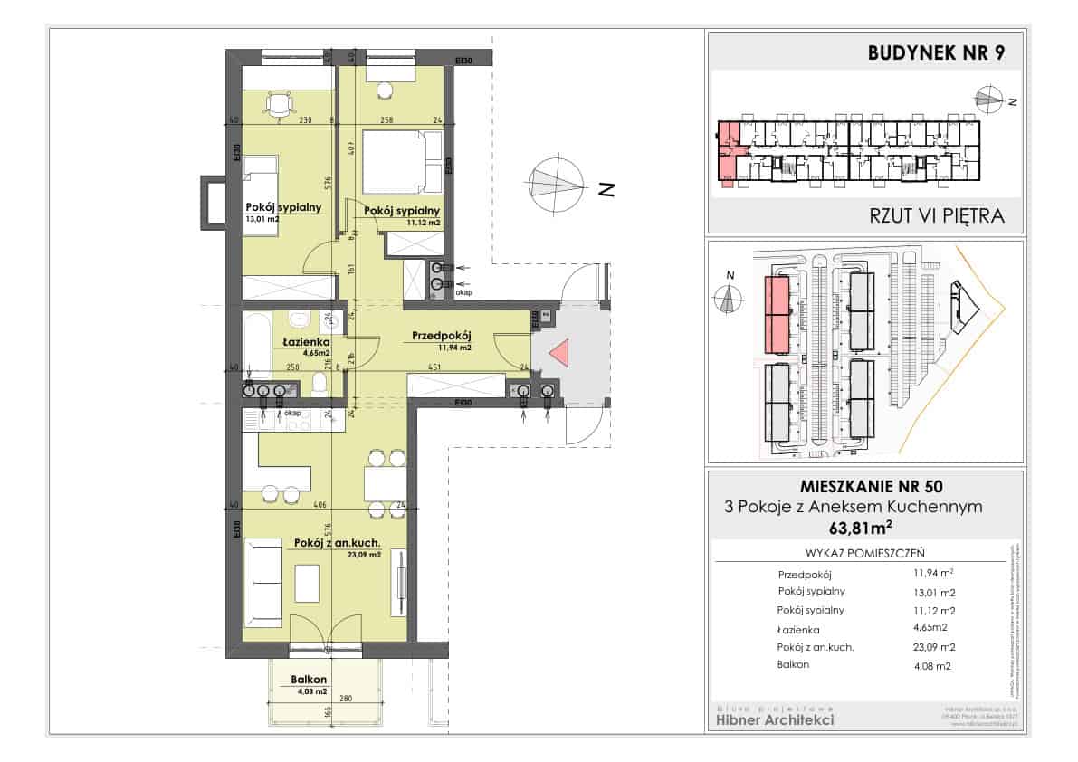
Graniczna, budynek 9

Kontynuując realizację osiedla przy ulicy Granicznej rozpoczynamy budowę kolejnego etapu. Dostosowując ofertę do oczekiwań Klientów najnowsze budynki będą miały zmienioną konstrukcję. Bloki od nr 9 do nr 12 będą sześciopiętrowe, z windami i miejscami postojowymi w garażu w kondygnacji podziemnej. Nabywcy będą mieli do wyboru szeroką gamę lokali mieszkalnych od dwupokojowych kawalerek o powierzchni około 30 m2 do czteropokojowych mieszkań o powierzchni około 80 m2. Do mieszkań można nabyć miejsca postojowe w obszernym garażu podziemnym lub na parkingu naziemnym. Na terenie działki zaprojektowano plac zabaw dla dzieci oraz teren rekreacyjny dla mieszkańców. Każdy z budynków będzie realizowany etapami. Sprzedajemy mieszkania z obydwu segmentów w budynku nr 9. Zakończenie budowy planowane jest w połowie 2027r. Wszystkie mieszkania w budynkach nr 7 i 8 zostały już sprzedane. Zapraszamy do kontaktu i rezerwacji.

















































































































